当前位置 :主页 / betway88必威东盟体育 / BetWay88体育平台 / 正文





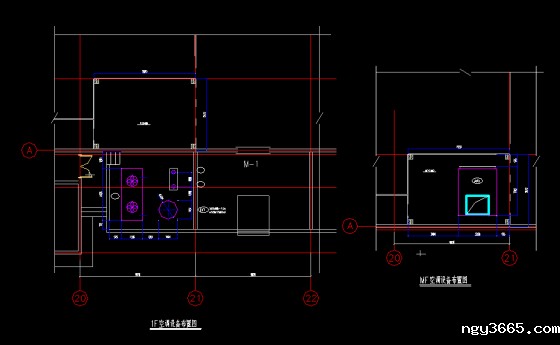
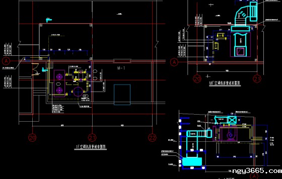
看了以上恒温恒湿空调安装设计图纸后,不仅仅是解决了江门区域朋友们的问题,同时其他地方的朋友看到了本文也是一样有帮助的,我们做的恒温恒湿工程都是需要用到恒温恒湿空调的,比如精密车间,酒窖,档案室,博物馆和实验室等等工程。这些工程,看起来名字完全不同,千奇百怪,但只要大家注意到一个核心的问题就很好理解了。只要这个工程需要控制两个因素,第一恒温,第二恒湿,那就必须用到恒温恒湿空调,或者也叫做恒温恒湿机。通过利用恒温恒湿空调这个核心设备,在搭配其他系统工程一起来控制温度和湿度,所以你们的项目是不是需要恒温恒湿空调,大家知道了吗?